
Achat appartement 3 pièces - 63.73m² à ORLEANS (45000)
Programme VAUQUOIS SIGNATURE situé dans le quartier Vauquois à ORLEANS.
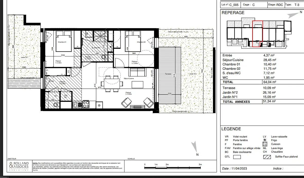
Appartement T3 à partir de 324 900 comprenant une entrée, un séjour avec cuisine ouverte, deux chambres, une salle d'eau avec WC, un WC séparé. Deux jardin et une terrasse.
Une place de stationnement en sous-sol.
Appartement T4 à partir de 424 900 comprenant une entrée, un dégagement, un séjour avec cuisine ouverte, trois chambres, une salle d'eau avec WC, un cellier. Une loggia.
Une place de stationnement en sous-sol.
La résidence se situe dans le quartier Vauquois, aux portes du centre-ville d'Orléans. Les commerces de proximité sont à 3 min à pied, les écoles à 10 min. L'arrêt de Tram « Madeleine » ligne B est à 2 min à pied et l'arrêt de Tram « De Gaulle » ligne A à 7 min à pied.
cliquer pour afficher plus du text Appartement T3 à partir de 324 900 comprenant une entrée, un séjour avec cuisine ouverte, deux chambres, une salle d'eau avec WC, un WC séparé. Deux jardin et une terrasse.
Une place de stationnement en sous-sol.
Appartement T4 à partir de 424 900 comprenant une entrée, un dégagement, un séjour avec cuisine ouverte, trois chambres, une salle d'eau avec WC, un cellier. Une loggia.
Une place de stationnement en sous-sol.
La résidence se situe dans le quartier Vauquois, aux portes du centre-ville d'Orléans. Les commerces de proximité sont à 3 min à pied, les écoles à 10 min. L'arrêt de Tram « Madeleine » ligne B est à 2 min à pied et l'arrêt de Tram « De Gaulle » ligne A à 7 min à pied.
Informations sur le logement
Nature
Appartement
Surface habitable
63.73m²
Nombre de pièces
3
Nombre de chambres
2
Étage
Rez-de-chaussée
Cuisine
Aucune
Année de construction
2025
Copropriété de lots (annexes inclus)
38
Procédure syndic
Non
Nombre de parking
1
Nombre de terrasses
1
Chauffage
Individuel radiateur
Conditions financières
Charges de copropriété prévisionnelles/an
Honoraire charge de l'acquéreur et du vendeur
Référence : CL-ORL-9573
Performance énergétique
DPE en cours de réalisation.
État des risques et pollutions
Les informations sur les risques auxquels ce bien est exposé sont disponibles sur le site Géorisques : www.georisques.gouv.fr
Localisation du bien
Votre ville
Âge moyen
37.97 ans
Nombre d’habitants
116344 habitants
Vos taxes et impôts
Taxe foncière
48.37 % de la valeur locative
Taxe d’habitation
39.6 % de la valeur locative
Taux de propriétaires
36.6 %
ORLEANS
Appartement, 3 pièces - 63.73 m²
Au prix de
324 900 €
hors frais de notaire. Ref. : CL-ORL-9573
Nous appeler
Visiter ce logement

Proposé par l’agence immobilière
0 personne a regardé cette annonce ces 30 derniers jours
Ces biens pourraient également vous plaire
ORLEANS (45000)
Au prix de
305 000 €
À Orléans, à deux pas du quartier Dunois, cet appartement de quatre pièces offre des volumes généreux et une luminosité tout au long de la journée. Le charme de l'ancien s'exprime pleinement à travers un magnifique parquet d'origine très bien entretenu.
Le salon/séjour de plus de 30 m² invite à la convivialité. Les trois chambres, spacieuses et calmes, sont idéalement distribuées ; l'une d'elles bénéficie d'une salle d'eau privative. Une seconde salle de bains et des toilettes séparées complètent cet agencement pensé pour le quotidien.
Ce bien se distingue par des charges particulièrement basses grâce à un syndic bénévole. Un box privatif fermé assure un stationnement sécurisé et une cave saine offre un espace de rangement supplémentaire très appréciable.
Situé dans un immeuble bien entretenu, cet appartement allie cachet authentique et sérénité résidentielle. Une opportunité idéale pour habiter ou investir sans compromis.
ORLEANS (45000)
Au prix de
111 000 €
ORLÉANS ? Quartier prisé, proche place Dunois
Situé dans un secteur recherché, à deux pas de la place Dunois, venez découvrir ce charmant appartement 2 pièces, au sein d'une résidence récente (2017).
Il se compose d'une entrée, d'un espace de vie lumineux avec cuisine ouverte, d'une chambre avec salle d'eau et WC.
Un stationnement en sous-sol vient compléter ce bien.
Idéal investisseur : vendu loué.
ORLEANS (45000)
Au prix de
125 000 €
Sur la commune d'ORLEANS
Cet appartement d'environ 40 m² situé au 2eme étage d'une copropriété de 2012, composé d'une entrée, un salon séjour, une cuisine, une chambre avec salle d'eau.
L'appartement bénéficie d'un balcon ainsi qu'un stationnement privatif en sous sol de type BOX.
Idéal pour un premier achat, ou Investissement locatif.
A visiter sans plus tarder
ORLEANS (45000)
Au prix de
222 500 €
À vendre à Orléans, Quai Madeleine : bel appartement T3 avec vue sur la Loire.
Situé au deuxième étage dans une résidence sécurisée construite en 2009 avec un bon DPE.
Venez découvrir cet appartement, le séjour ouvre sur une cuisine fonctionnelle. Deux chambres profitent d'une belle luminosité. La salle de bains est accompagnée d'un WC. Le balcon offre une vue directe et dégagée sur la Loire.
Vous bénéficiez d'une place de parking en sous-sol et d'un second stationnement au rez-de-chaussée.
L'emplacement est idéal, à quelques minutes à pied du centre-ville et des quais.
Prestations récentes, ascenseur, vue fleuve rare : ce bien mérite vraiment la visite.
Disponible Juillet 2026 (locataire en place pour le moment).
Contactez-nous pour organiser une visite !
ORLEANS (45000)
Au prix de
398 000 €
APPARTEMENT AU COEUR D'ORLÉANS
Découvrez ce magnifique appartement situé dans un immeuble de charme en plein centre-ville, à proximité immédiate des quais de Loire. En entrant, vous serez accueilli par une grande entrée qui s'ouvre sur un double salon-séjour lumineux, idéal pour recevoir. La salle à manger attenante et la cuisine entièrement équipée complètent cet espace de vie raffiné.
L'appartement dispose de trois chambres, chacune dotée de sa propre salle d'eau, offrant ainsi intimité et confort. Un dressing spacieux et un WC indépendant viennent parfaire cette composition.
Les finitions de qualité, telles que le parquet en point de Hongrie et la hauteur sous plafond, ajoutent une touche d'élégance à cet espace de vie. Ne manquez pas l'opportunité de visiter ce bien d'exception !
ORLEANS (45000)
Au prix de
129 000 €
Appartement T3 situé dans le quartier Dunois à Orléans. Cet appartement de 58 m², lumineux, vous propose un cadre de vie agréable à proximité de toutes les commodités.
L'appartement comprend deux chambres, un séjour lumineux, une cuisine séparée, ainsi qu'une salle d'eau. Vous apprécierez également un balcon avec une vue dégagée, idéal pour profiter de moments de détente. Situé au dernier étage d'un immeuble avec ascenseur, cet appartement bénéficie d'une grande tranquillité. De plus, une cave et un garage privatifs complètent ce bien.
L'appartement est situé dans un quartier calme et convivial, à proximité des transports en commun, des commerces, des écoles et des services, vous offrant ainsi une vie pratique et bien connectée.
ORLEANS (45000)
Au prix de
116 800 €
Aux portes d'Orleans , Optez pour cet appartement avec une grande terrasse 32 m² environ ! situé au 1er étage , il comprend entrée avec placard, séjour avec grande terrasse, cuisine indépendante (à aménager), 2 chambres dont une avec accès à la terrasse, wc, salle de bains et buanderie. Cave en sous-sol. place de parking libre. A découvrir sans tarder !
++ revêtement peinture, sol séjour neuf, ballon électrique , fenêtres PVC DV , robinets thermostatiques sur radiateur !
Charges de copro comprennent (eau, chauffage, entretien, syndic)
ORLEANS (45000)
Au prix de
65 000 €
INVESTISSEMENT
Investissez dans un appartement de type studio dans une résidence gérée, avec des services de qualités (Salle de sport, cafeteria, laverie..).
Appartement de type Studio composé d'une entrée, une salle de bains avec WC, une pièce de vie, une kitchenette.
Loyer annuel HT de 2800.
Contactez nous pour plus d'informations.
ORLEANS (45000)
Au prix de
222 500 €
ORLEANS CENTRE
Appartement situé en hyper-centre, dans un secteur recherché, à proximité immédiate de toutes les commodités et du tramway. Situé au 3? étage, il bénéficie d'une belle hauteur sous plafond, offrant volume et cachet.
Il se compose d'une entrée, d'un séjour, d'un dégagement, d'une cuisine, de trois chambres, d'une salle d'eau et de WC indépendants.
Un emplacement idéal, pratique et agréable à vivre.
A VISITER SANS PLUS TARDER
ORLEANS (45000)
Au prix de
135 000 €
ORLEANS - HYPER CENTRE
Idéalement situé en plein coeur de la ville, à proximité immédiate des Galeries Lafayette, de la place Châtelet et de toutes les commodités, cet appartement vous séduira par son emplacement privilégié.
Au 4e et dernier étage, ce bien se compose d'une entrée, d'un séjour lumineux, d'une cuisine indépendante avec vue imprenable sur la Cathédrale d'Orleans, d'une salle de bains, de WC séparés, d'un espace buanderie ainsi que d'une chambre avec placard intégré. DPE en D avec faibles charges. Idéal primo accédant ou investisseur. VENDU LIBRE
Une belle opportunité à découvrir sans tarder !














