
Achat appartement 1 pièce - à BOURGES (18000)
Situé à proximité du centre-ville de Bourges, la résidence Carré-Voltaire est constituée de 62 appartements allant du T1 au T4 répartis dans un bâtiment en R+3.
Appartement T1 à partir de 108 900 comprenant, une entrée, une pièce de vie avec kitchenette et une salle d'eau avec WC.
Appartement T2 à partir de 139 900 comprenant une pièce de vie, une chambre, une salle d'eau avec WC et une terrasse.
Appartement T3 à partir de 249 900 comprenant une pièce de vie, un dégagement, deux chambres, une buanderie, une salle d'eau et un WC. Un jardinet et une terrasse. Une place de stationnement extérieur.
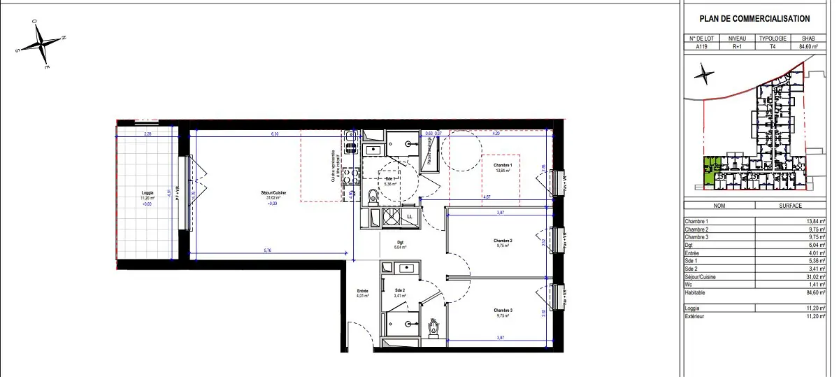
Appartement T4 à partir de 299 900 comprenant, une entrée, un dégagement, une pièce de vie, une salle d'eau, un WC, trois chambres dont une suite parentale avec salle d'eau, WC et placard aménagé. Une loggia. Deux places de stationnement extérieur.
Le programme offre un accès rapide aux commerces et services essentiels : pharmacie 160m, boulangerie 200m, Halle Saint-Bonnet 260m, restaurants à moins de 300m, Carrefour City 300m, centre commercial Avaricum 350m, Picard 400m, complexe sportif et centre nautique à 13 min à pied, école Cour Chertier à 7 min à pied, école Nicolas Leblanc à 10 min à pied. Côtés transports : arrêts de bus à 4 min (ligne 10, 11, 13, 21), gare de Bourges à 1.2km.
cliquer pour afficher plus du text Appartement T1 à partir de 108 900 comprenant, une entrée, une pièce de vie avec kitchenette et une salle d'eau avec WC.
Appartement T2 à partir de 139 900 comprenant une pièce de vie, une chambre, une salle d'eau avec WC et une terrasse.
Appartement T3 à partir de 249 900 comprenant une pièce de vie, un dégagement, deux chambres, une buanderie, une salle d'eau et un WC. Un jardinet et une terrasse. Une place de stationnement extérieur.
Appartement T4 à partir de 299 900 comprenant, une entrée, un dégagement, une pièce de vie, une salle d'eau, un WC, trois chambres dont une suite parentale avec salle d'eau, WC et placard aménagé. Une loggia. Deux places de stationnement extérieur.
Le programme offre un accès rapide aux commerces et services essentiels : pharmacie 160m, boulangerie 200m, Halle Saint-Bonnet 260m, restaurants à moins de 300m, Carrefour City 300m, centre commercial Avaricum 350m, Picard 400m, complexe sportif et centre nautique à 13 min à pied, école Cour Chertier à 7 min à pied, école Nicolas Leblanc à 10 min à pied. Côtés transports : arrêts de bus à 4 min (ligne 10, 11, 13, 21), gare de Bourges à 1.2km.
Informations sur le logement
Nature
Appartement
Nombre de pièces
1
Étage
Rez-de-chaussée
Nombre d’étages du bâtiment
3
Cuisine
Aucune
Année de construction
2026
Copropriété de lots (annexes inclus)
62
Procédure syndic
Non
Chauffage
Individuel électrique
Conditions financières
Charges de copropriété prévisionnelles/an
Honoraire charge de l'acquéreur et du vendeur
Référence : CL-BOU-9499
Performance énergétique
DPE en cours de réalisation.
État des risques et pollutions
Les informations sur les risques auxquels ce bien est exposé sont disponibles sur le site Géorisques : www.georisques.gouv.fr
Localisation du bien
Votre ville
Âge moyen
42.78 ans
Nombre d’habitants
64238 habitants
Vos taxes et impôts
Taxe foncière
45.92 % de la valeur locative
Taxe d’habitation
39.23 % de la valeur locative
Taux de propriétaires
48.2 %
BOURGES
Appartement, 1 pièce
Au prix de
139 900 €
hors frais de notaire. Ref. : CL-BOU-9499
Nous appeler
Visiter ce logement

Proposé par l’agence immobilière
41 personnes ont regardé cette annonce ces 30 derniers jours
Ces biens pourraient également vous plaire
BOURGES (18000)
Au prix de
87 099 €
Plateau à rénover intégralement dans le coeur de Bourges
les parties communes seront refaites
possibilité d'un parking en supplément
pour investisseur ou pour habiter
BOURGES (18000)
Au prix de
108 455 €
Plateau avec du charme f 3 avec 2 chambres à rénover intégralement dans le coeur de Bourges dans un hôtel particulier dont les parties communes seront refaites, parking possible en supplément et proche des commerces.
BOURGES (18000)
Au prix de
252 000 €
Quartier Séraucourt
Immeuble comprenant :
Au rez de chaussée : Un appartement T2 d'environ 35m2 (carrez) entièrement rénové en 2021 équipé et meublé tout confort . Actuellement loué 530 euros hors charges( bail classique avec meubles à disposition) DPE : C
Au 1er étage : Un appartement T2 d'environ 43 m2 ( carrez) rénové en 2014 . Actuellement loué 430 euros hors charges. DPE : C
Au 2ème étage : Un studio d'environ 19m2 avec 2 terrasses (20 et 5.5 m2)rénové en 2015 équipé et meublé tout confort ( Bail classique avec meubles à disposition) . Actuellement loué 430 euros hors charges. DPE : D
Aucun travaux à prévoir!!!
A découvrir rapidement!!!
BOURGES (18000)
Au prix de
138 500 €
BOURGES, AVENUE D'ORLEANS :
A proximité immédiate du centre-ville, dans une une petite copropriété de 7 lots, appartement en duplex comprenant une entrée, salon/séjour de 25m², cuisine aménagée, cellier et WC.
A l'étage, un couloir dessert deux chambres, un bureau et une salle d'eau avec WC.
Le tout avec garage privatif en sous-sol et une place de parking privative.
A VISITER !
BOURGES (18000)
Au prix de
98 500 €
Quartier Avenue de Dun
Appartement au 3ème étage avec ascenseur.
Il se compose d'une entrée, d'un séjour, d'une cuisine, d'une sallle de bains, wc, et 3 chambres.
2 grands balcons de chaque côté de l'appartement.
Une place de parking privative ainsi qu'une cave viennent compléter ce bien.
Travaux de rafraichissement à prévoir.
BOURGES (18000)
Au prix de
114 600 €
ROUTE DE LA CHAPELLE :
Situé dans une copropriété sécurisée datant de 2012, au rez-de-chaussée, appartement T3 de 62m² comprenant ; une entrée, salon/séjour avec cuisine ouverte, dégagement, salle de bains, WC séparés, deux chambres.
Terrasse.
Deux places de stationnement (une souterraine et une extérieur) viennent compléter ce bien.
APPARTEMENT VENDU AVEC LOCATAIRE EN PLACE.
Loyer hors charges de 523.
BOURGES (18000)
Au prix de
67 500 €
Résidence Goulevents
Appartement situé au 3 ème étage sans ascenseur comprenant une cuisine, un séjour, 3 chambres ( 1 pouvant être le salon), une salle de bains et wc séparés.
Une cave et un garage viennent compléter ce bien.
Appartement en bon état !!!
SAINT DOULCHARD (18230)
Au prix de
63 500 €
Situé allée des Roses à Saint-Doulchard, appartement type 2 au 4ème étage.
Il se compose d'une entrée, WC séparés, cuisine avec arrière cuisine, salon/séjour d'environ 23m², dégagement avec placards, salle de bains et une chambre.
Le tout avec place de parking et cave privatives.
APPARTEMENT VENDU AVEC LOCATAIRE EN PLACE.
LOYER HORS CHARGES : 435.
BOURGES (18000)
Au prix de
92 500 €
Secteur Hôpital
Résidence Pascal Valleau
Appartement au 2ème étage sans ascenseur dans résidence sécurisée.
Il se compose d'une entrée, d'une salle de bains, d'un wc séparé, d'un salon-séjour donnant sur un balcon, d'une cuisine et de 2 chambres.
2 places de parking privatives viennent compléter ce bien.
Appartement en très bon état et vendu avec locataire en place ( loyer 487 euros hors charges )













