
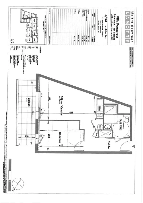
Location appartement 3 pièces - 59.38m² à Montfort sur meu (35160)
Informations sur le logement
Nature
Appartement
Surface habitable
59.38m²
Nombre de pièces
3
Meublé
Non
Étage
Rez-de-chaussée
Année de construction
1915
Typologie
T3
Date de disponibilité
01/04/2026
Loyer et honoraires
Loyer hors charges
650 €
Montant des charges
47 €(1)
Dépôt de garantie
650 €
Honoraires charge locataire
654.9 € TTC(2)
Performance énergétique
1345
5
Estimation des coûts annuels d’énergie du logement
Montant estimé des dépenses annuelles d'énergie pour un usage standard : chauffage, eau chaude sanitaire, éclairages, auxiliaire (notamment la climatisation).
Entre 790 € et 1110 € par an
État des risques et pollutions
Les informations sur les risques auxquels ce bien est exposé sont disponibles sur le site Géorisques : www.georisques.gouv.fr
Votre ville
Âge moyen
43.26 ans
Nombre d’habitants
6767 habitants
Vos taxes et impôts
Taxe foncière
43.58 % de la valeur locative
Taxe d’habitation
59.65 % de la valeur locative
Taux de propriétaires
64.8 %















