
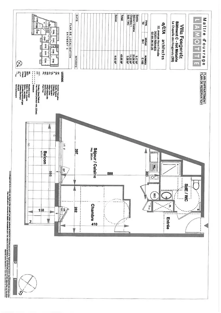
Location appartement 2 pièces - 43.05m² à La chapelle-des-fougeret (35520)
EXCLUSIVITE-Programme récent "Villa Fougeretz" situé à La Chapelle des Fougeretz, idéalement situé à proximité des commerces et bus, t2 de 43.05 m² au 1er étage exposé sud-ouest comprenant une entrée , un séjour , une cuisine ouverte aménagée et équipée ( plaques, hotte , réfrigérateur top), une chambre et un balcon , une place de parking en sous-sol. loyer 491.00 euros + 30.00 euros de charges soit 521.00 euros charges comprises, dépôt de garantie 491.00 euros , honoraire de location 473.55 euros dont 129.15 euros pour l'état des lieux . montant estimé des dépenses annuelles d'énergie pour un usage standard entre 635.00 euros et 858.00 euros, classe C. soumis au dispositif pinel.libre le 19/05/2026.
cliquer pour afficher plus du text Informations sur le logement
Nature
Appartement
Surface habitable
43.05m²
Nombre de pièces
2
Nombre de chambres
1
Meublé
Non
Étage
1
Nombre d’étages du bâtiment
3
Cuisine
Equipée
Année de construction
2022
Typologie
T2
Date de disponibilité
18/05/2026
Nombre de salle d'eau
1
Loyer et honoraires
Loyer hors charges
507 €
Montant des charges
30 €(1)
Dépôt de garantie
507 €
Honoraires charge locataire
477.85 € TTC(2)
Référence : C2Q.65636
Performance énergétique
1374
4
Estimation des coûts annuels d’énergie du logement
Montant estimé des dépenses annuelles d'énergie pour un usage standard : chauffage, eau chaude sanitaire, éclairages, auxiliaire (notamment la climatisation).
Entre 635 € et 858 € par an
État des risques et pollutions
Les informations sur les risques auxquels ce bien est exposé sont disponibles sur le site Géorisques : www.georisques.gouv.fr
Localisation du bien
LA CHAPELLE-DES-FOUGERET
Appartement, 2 pièces - 43.05 m²
537 €
Loyer : 537 € par mois charges comprises dont 30€ par mois de provision de charge (Régularisation annuelle) - Honoraires charge locataire : 477.85 € TTC dont 130.44 € TTC d'honoraires d'état des lieux. Non meublé. Ref. : C2Q.65636
Nous appeler
Visiter ce logement

Proposé par l’agence immobilière
33 personnes ont regardé cette annonce ces 30 derniers jours
Ces biens pourraient également vous plaire
PACE (35740)
Au prix de
770 €
Exclusivite-Résidence Neuve ECLISSE à Pacé , t3 de 65.07 m² situé au 2 étage comprenant un séjour avec cuisine ouverte aménagée et équipée d'une hotte, deux chambres dont une avec placard,une salle d'eau, un cellier, un wc , un dégagement, un balcon de 5.39 m² exposé ouest, et une place de parking extérieure. loyer 730.00 euros + 40.00 euros de charges comprenant les charges d'immeuble soit 770.00 euros charges comprises. dépôt de garantie 730.00 euros , dépôt de garantie 730.00 euros . honoraires de location 722.27 euros dont 197.16 euros pour l'état des lieux . libre le 1er juillet 2026.
RENNES (35000)
Au prix de
664.34 €
RENNES, BEAUREGARD Avenue Germaine Dulac, au 2ème étage d'une résidence de 2019 ''LE COURS DES ARTS'', T2 de 46.97m² offrant, une entrée avec placard, un séjour donnant sur un balcon exposé Sud/Ouest, cuisine ouverte aménagée et équipée (plaques, hotte, four), une chambre donnant sur un second balcon exposé Sud/Est, une salle d'eau avec branchement machine à laver et un WC séparé. Le tout avec un garage privatif en sous-sol. Disponible à la location le 6 mai 2026. Les charges comprennent le chauffage et l'eau chaude. Loué dans le cadre de la loi PINEL.
RENNES (35000)
Au prix de
742.67 €
RENNES, Villejean Rue du Limousin, T4 rénové en 2013 de 67,85 m2, au 3ème étage, offrant entrée, cuisine séparée aménagée (+ hotte), loggia, double salon-séjour avec balcon exposé sud et placard, 2 chambres, salle d'eau avec branchement machine à laver, dressing aménagé et WC séparés. Le tout sur parquet vitrifié. Double vitrage et volet roulant électrique. Cave au sous-sol. Possibilité de stationnement non privatif. Chauffage gaz et eau chaude inclus dans les charges. Disponible à la location à compter du 02 mai 2026.
VEZIN LE COQUET (35132)
Au prix de
722.38 €
Bel appartement de type 3 situé au 2ème étage d¿une résidence de 2022 avec ascenseur, comprenant une entrée, un séjour avec cuisine aménagée et équipée (four, plaque de cuisson, hotte, micro onde), deux chambres avec placards intégrés, un cellier, une salle d¿eau et un WC séparé ; il bénéficie d¿une agréable terrasse privative exposée plein Sud ; le bien est complété par une cave privative ainsi qu¿une place de parking extérieure avec barrière. A moins de 10min à pied des commerces. Charges comprises : entretien et maintenance des parties communes.
Rennes (35000)
Au prix de
995.07 €
RENNES, VILLEJEAN Rue de Franche Comté ¿ T4 de 75.63 m² offrant: une entrée, une pièce de vie donnant sur un balcon, une cuisine séparée aménagée et équipée (plaques, hotte, four), un couloir avec placards desservant : 3 chambres (dont 2 avec balcon), une salle d'eau et un WC séparé. Le tout avec une cave. Logement disponible de suite. Eau chaude, eau froide et chauffage inclus dans les charges. Logement soumis à la GLI.
RENNES (35700)
Au prix de
625.3 €
Rennes - Patton, Avenue du Général Patton, dans une copropriété agréable, charmant T2 refait récemment de 43m² au RDC surélevé, comprenant une entrée avec dressing, une pièce de vie avec balcon exposé sud-ouest et sans vis à vis, une cuisine ouverte aménagée et équipée (plaques, hotte, four), salle de bains avec WC, une chambre avec placard, une cave. Proche métro ligne B. Disponible à la location le 12 mai 2026. Les charges comprennent le chauffage, l'eau chaude et l'eau froide.
RENNES (35000)
Au prix de
393.15 €
RENNES, quartier Lorient/St Brieuc, rue Henri Le Guilloux, studette meublé de 9.24m² refait à neuf en 2025 (peinture, sol, mobilier) au 2eme étage d'une résidence étudiante comprenant un lit, un bureau et un évier. Les sanitaires et la cuisine sont collectifs. Le tout avec un parking extérieur privatif. Un gardien s'occupe de l'immeuble. Les charges comprenant le chauffage, l'eau chaude, l'eau froide et l'électricité. Le logement est disponible de suite. Proche de l'université de RENNES 2.
BETTON (35830)
Au prix de
717 €
Exclusivité BETTON, appartement de type 3 au rez de chaussée de 62.93 m² comprenant une entrée avec placard, un séjour avec cuisine aménagée et équipée (plaques et hotte), deux chambres dont une avec placard, une salle de bains et un cellier. Balcon de 10.97m², un garage en sous-sol. chauffage individuel gaz. disponible pour le 15/05. Dispositif pinel. Loyer 664.00euros + 53.00euros de charges. dépôt de garantie : 664.00euros. Honoraires location : 698.53euros dont 190.68euros pour l'état des lieux.
RENNES (35000)
Au prix de
522.49 €
RENNES, CENTRE-VILLE Rue du Louis d'Or, proche transports et toutes commodités, appartement de type 1bis de 33.87m² au RDC, une entrée avec placard, une pièce de vie donnant sur un balcon, une cuisine séparée aménagée et équipée, une salle de bains avec WC. Une place de parking privative en sous-sol. Disponible à la location le 11 Juin 2026.
RENNES (35000)
Au prix de
1 450 €
RENNES, quartier Rue de fougères, Rue françois Lanno, au rez-de-chaussée d'une résidence de 2007 un T4 MEUBLE de 88.22m² comprenant une entrée, un séjour, une cuisine équipée/aménagée (plaques, hotte et four, lave-vaisselle et micro-onde), un jardin et deux terrasses, trois chambres une chambre avec placard, une salle de bain et WC séparé. Possilibilé de colocation. Possilibilté d'une place de parking (70?/mois supplémentaire). Chauffage individuel Gaz. Disponible de suite. Eau froide compris dans les charges. Visite virtuelle disponible sur notre site internet.














