
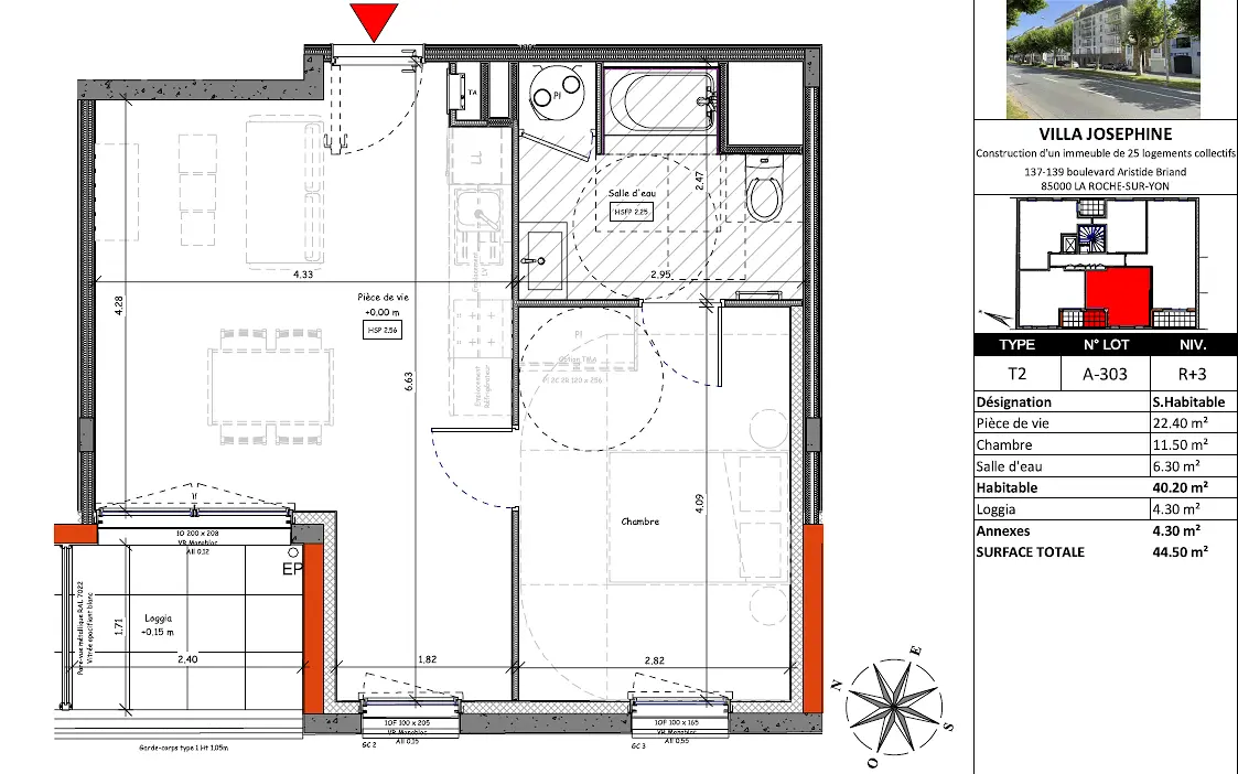
Location appartement 2 pièces - 40.2m² à La roche s/ yon (85000)
À louer, appartement T2 neuf situé dans une résidence récente, sécurisée et idéalement placée à La Roche-sur-Yon. Situé au 3ème étage, cet appartement se compose d'un espace de vie lumineux avec coin cuisine, une chambre avec placard, une salle d'eau avec WC et un balcon.
Une place de parking privative est incluse sur le parking sécurisé de la résidence.
La cuisine sera aménagée et équipée d'une hotte et d'une plaque de cuisson.
L'appartement est neuf et proposé en première occupation.
Vous bénéficierez d'un emplacement privilégié à proximité immédiate de la Place Napoléon, des commerces, des écoles, des transports en commun, de la gare SNCF et des principaux axes routiers, offrant un cadre de vie pratique et agréable au quotidien.
Livraison prévue deuxième quinzaine de juin 2026. Appartement disponible à partir du 1er juillet 2026. Aucune visite possible avant livraison.
Pour toute demande, merci de bien vouloir constituer votre dossier locataire via notre site Square Habitat en vous rendant sur l'annonce concernée.
cliquer pour afficher plus du text Informations sur le logement
Nature
Appartement
Surface habitable
40.2m²
Nombre de pièces
2
Nombre de chambres
1
Meublé
Non
Étage
3
Nombre d’étages du bâtiment
6
Cuisine
Equipée
Année de construction
1900
Nombre de parking
1
Typologie
T2
Date de disponibilité
01/07/2026
Nombre de salle d'eau
1
Loyer et honoraires
Loyer hors charges
565 €
Montant des charges
55 €(1)
Dépôt de garantie
565 €
Honoraires charge locataire
353.76 € TTC(2)
Référence : C2S.103656
Performance énergétique
6712
12
Estimation des coûts annuels d’énergie du logement
Montant estimé des dépenses annuelles d'énergie pour un usage standard : chauffage, eau chaude sanitaire, éclairages, auxiliaire (notamment la climatisation).
Entre 500 € et 730 € par an
État des risques et pollutions
Les informations sur les risques auxquels ce bien est exposé sont disponibles sur le site Géorisques : www.georisques.gouv.fr
Localisation du bien
LA ROCHE S/ YON
Appartement, 2 pièces - 40.2 m²
620 €
Loyer : 620 € par mois charges comprises dont 55€ par mois de provision de charge (Régularisation annuelle) - Honoraires charge locataire : 353.76 € TTC dont 120.6 € TTC d'honoraires d'état des lieux. Non meublé. Ref. : C2S.103656
Nous appeler
Visiter ce logement

Proposé par l’agence immobilière
216 personnes ont regardé cette annonce ces 30 derniers jours
Ces biens pourraient également vous plaire
LA ROCHE S/ YON (85000)
Au prix de
765 €
À louer, appartement T3 neuf situé dans une résidence récente, sécurisée et idéalement placée à La Roche-sur-Yon. Situé au 3? étage, cet appartement se compose d¿une entrée, un dégagement avec placard, un espace de vie lumineux avec coin cuisine, deux chambres, une salle d¿eau, un WC indépendant et un balcon. Une place de parking privative est incluse sur le parking sécurisé de la résidence. Bien soumis à la garantie des loyers impayés. La cuisine sera aménagée et équipée d¿une hotte et d'une plaque de cuisson. L¿appartement est neuf et proposé en première occupation. Vous bénéficierez d¿un emplacement privilégié à proximité immédiate de la Place Napoléon, des commerces, des écoles, des transports en commun, de la gare SNCF et des principaux axes routiers, offrant un cadre de vie pratique et agréable au quotidien. Livraison prévue deuxième quinzaine de juin 2026. Appartement disponible à partir du 1er juillet 2026. Aucune visite possible avant livraison. Pour toute demande, merci de bien vouloir constituer votre dossier locataire via notre site Square Habitat en vous rendant sur l'annonce concernée.
LA ROCHE SUR YON (85000)
Au prix de
477 €
Dans le centre-ville de la Roche-sur-Yon, un studio meublé qui se compose d'une entrée, une pièce de vie avec cuisine aménagée et équipée et une salle d'eau avec placard et WC. Les charges ne comprennent que les charges de copropriété. DISPONIBLE IMMEDIATEMENT Pour toute demande, merci de bien vouloir constituer votre dossier locataire via notre site Square Habitat en vous rendant sur l'annonce concernée.
LA ROCHE-SUR-YON (85000)
Au prix de
390 €
Studio meublé situé au 1er étage d'un immeuble en centre-ville de la Roche-sur-Yon qui se compose d'une pièce de vie avec kitchenette aménagée et équipée et une salle de bains avec WC. Idéalement situé, avec des commerces et des transports en commun à proximité. Loyer mensuel : 360 euros Charges : 30 euros pour l'eau froide, les ordures ménagères et intenet (fibre optique) DISPONIBLE IMMEDIATEMENT ! Pour toute demande, merci de bien vouloir constituer votre dossier locataire via notre site Square Habitat en vous rendant sur l'annonce concernée.
LA ROCHE-SUR-YON (85000)
Au prix de
530 €
Appartement T3 meublé situé au 1er étage d'un immeuble en centre-ville de la Roche-sur-Yon qui se compose d'une pièce de vie avec une cuisine aménagée et équipée, une salle de bains avec WC et 2 chambres avec placards. À l'extérieur : Terrasse privative ensoleillée ! Un véritable atout pour profiter de moments de détente en plein air, sous le soleil. Idéalement situé, avec des commerces et des transports en commun à proximité. Loyer mensuel : 500 euros Charges : 30 euros pour l'eau froide, les ordures ménagères et intenet (fibre optique) DISPONIBLE IMMEDIATEMENT ! Pour toute demande, merci de bien vouloir constituer votre dossier locataire via notre site Square Habitat en vous rendant sur l'annonce concernée.
LA ROCHE SUR YON (85000)
Au prix de
790 €
Dans le centre-ville de La Roche-sur-Yon, cet appartement T3 est situé au 2e étage d'une résidence sécurisée. Il comprend une entrée avec placard, un séjour spacieux et lumineux avec placard, une cuisine indépendante aménagée et équipée d'un four et de plaques de cuisson au gaz de ville, une loggia, un couloir desservant deux chambres dont une avec placard, une salle d'eau et un WC indépendant, ainsi qu'une grande loggia supplémentaire. Fibre optique dans le logement. Parking au sein de la résidence pour un stationnement facilité. Le loyer comprend le chauffage, l'eau froide, l'eau chaude, les charges de copropriété et les ordures ménagères. DISPONIBLE IMMEDIATEMENT Pour toute demande, merci de bien vouloir constituer votre dossier locataire via notre site Square Habitat en vous rendant sur l'annonce concernée.
LA ROCHE SUR YON (85000)
Au prix de
770 €
Au 6eme étage avec ascenseur d'une résidence à la Roche-sur-Yon, cet appartement se compose d'une entrée, une cuisine aménagée et équipée donnant sur un balcon, un dégagement avec placard, un salon-séjour avec placard donnant sur une loggia, 2 chambres dont une avec placard, une salle d'eau et un wc. 1 cave er 1 place de parking Le loyer charges comprises comprend les charges de copropriété, l'eau froide et l'eau chaude ainsi que le chauffage. DISPONIBLE LE 19/06/2026 Pour toute demande, merci de bien vouloir constituer votre dossier locataire via notre site Square Habitat en vous rendant sur l'annonce concernée.
LA ROCHE-SUR-YON (85000)
Au prix de
605 €
Situé au 3e étage d'une résidence sécurisée, cet appartement meublé type 1 Bis est idéalement agencé et très lumineux. Il se compose d'un hall d'entrée accueillant avec placard, une cuisine aménagée et équipée ouverte sur un séjour lumineux et spacieux, une chambre semi-fermée par un rideau japonais, une salle d'eau et un WC séparé. De plus, vous disposez d'un garage fermé au sous-sol pour un stationnement sécurisé. Proximité des commerces et transports en commun ! DISPONIBLE IMMEDIATEMENT Pour toute demande, merci de bien vouloir constituer votre dossier locataire via notre site Square Habitat en vous rendant sur l'annonce concernée.
LA ROCHE-SUR-YON (85000)
Au prix de
770 €
Au sein d'une résidence récente et sécurisée, cet appartement T3 situé au 3ème étage avec ascenseur, se compose d'une entrée avec placard, un salon-séjour avec une cuisine aménagée et équipée (réfrigérateur avec compartiment congélateur, hotte, four, lave-vaisselle, plaque de cuisson), une salle de bains, un WC, 2 chambres dont une avec placard et un balcon. Au rez-de-chaussée de la résidence : un place de parking privative couverte sur parking sécurisé ainsi qu'un local de stockage privatif. DISPONIBLE A COMPTER DU 01/06/2026 Pour toute demande, merci de bien vouloir constituer votre dossier locataire via notre site Square Habitat en vous rendant sur l'annonce concernée.
MOUCHAMPS (85640)
Au prix de
469 €
A LOUER appartement T2 de 50m2 rénové comprenant : une pièce de vie, une cuisine , salle de bain , chambre , wc , cave et une place de parking . disponible fin mai 2026. Pour toute demande, merci de bien vouloir constituer votre dossier locataire via notre site Square Habitat en vous rendant sur l'annonce concernée.
LES SABLES D'OLONNE (85340)
Au prix de
667.91 €
Résidence Domaine des Cyprès - Appartement T2 avec balcon et parking Situé au sein de la résidence prisée Domaine des Cyprès, découvrez ce bel appartement de type 2 au 1er étage, offrant un cadre de vie agréable et fonctionnel. Il se compose d'une entrée desservant une lumineuse pièce de vie avec espace séjour et cuisine ouverte, idéale pour vos moments de convivialité. L'espace nuit comprend une chambre confortable avec placard intégré, ainsi qu'une salle d'eau moderne et des WC indépendants. Vous apprécierez également son balcon privatif, parfait pour profiter des beaux jours en toute tranquillité. Un emplacement de stationnement intérieur en sous-sol complète ce bien, apportant un confort supplémentaire au quotidien.














