
Location appartement 3 pièces - 65.22m² à Audenge (33980)
À louer à Audenge, appartement T3 en duplex de 65,22 m², situé au sein de la résidence L'écrin du Bassin, dans un environnement calme et résidentiel.
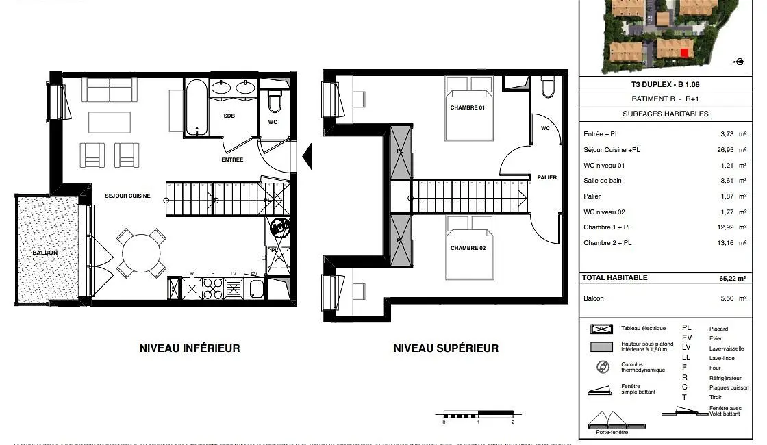
Le logement offre une belle pièce de vie lumineuse avec cuisine ouverte, donnant accès à un balcon privatif, ainsi qu'une salle de bains et des WC au premier niveau.
À l'étage, l'espace nuit se compose de deux chambres, d'un palier et de WC supplémentaires.
L'appartement bénéficie d'un chauffage électrique, de deux places de parking extérieures privatives et d'un agencement fonctionnel, idéal pour un couple ou une petite famille. La résidence est récente et bien entretenue, à proximité des commodités et du bassin d'Arcachon.
Usage exclusivement en résidence principale. Disponible prochainement.
cliquer pour afficher plus du text Informations sur le logement
Nature
Appartement
Surface habitable
65.22m²
Nombre de pièces
3
Nombre de chambres
2
Meublé
Non
Nombre de salles de bain
1
Étage
1
Année de construction
2025
Typologie
T3
Date de disponibilité
31/01/2026
Loyer et honoraires
Loyer hors charges
777 €
Montant des charges
60 €(1)
Dépôt de garantie
777 €
Honoraires charge locataire
717.42 € TTC(2)
Référence : C2C.96989
Performance énergétique
491
1
Estimation des coûts annuels d’énergie du logement
Montant estimé des dépenses annuelles d'énergie pour un usage standard : chauffage, eau chaude sanitaire, éclairages, auxiliaire (notamment la climatisation).
Entre 390 € et 570 € par an
État des risques et pollutions
Les informations sur les risques auxquels ce bien est exposé sont disponibles sur le site Géorisques : www.georisques.gouv.fr
Localisation du bien
Votre ville
Âge moyen
43.08 ans
Nombre d’habitants
9550 habitants
Vos taxes et impôts
Taxe foncière
46.89 % de la valeur locative
Taxe d’habitation
78.06 % de la valeur locative
Taux de propriétaires
60 %
AUDENGE
Appartement, 3 pièces - 65.22 m²
837 €
Loyer : 837 € par mois charges comprises dont 60€ par mois de provision de charge (Régularisation annuelle) - Honoraires charge locataire : 717.42 € TTC dont 195.66 € TTC d'honoraires d'état des lieux. Non meublé. Ref. : C2C.96989
Nous appeler
Visiter ce logement

Proposé par l’agence immobilière
5 personnes ont regardé cette annonce ces 30 derniers jours
Ces biens pourraient également vous plaire
AUDENGE (33980)
Au prix de
747 €
Square Habitat Groupe Crédit Agricole vous propose ce T3 de 56.22 m² situé au rez-de-chaussée d'une résidence sans ascenseur. Il se compose d'une entrée, un séjour ouvert sur une cuisine aménagée et semi-équipée (hotte et plaque vitrocéramique), 2 chambres avec placard, une salle d'eau, toilettes indépendantes, une place de parking complète ce bien. Disponibilité : fin février Ce bien est sous le dispositif PINEL, merci de vérifier votre éligibilité, il est également sous GLI (Garantie Loyer Impayé).
ANDERNOS (33510)
Au prix de
1 200 €
Maison de plain-pied de type T3 de 69 m² en parfait état, située dans une petite copropriété de seulement quatre lots. Positionnée sur la droite, elle dispose d'une agréable terrasse et d'un jardinet privatif, ainsi que de deux places de parking. Elle se compose d'une entrée avec placard, d'une cuisine aménagée et équipée ouvrant sur un vaste séjour, d'une petite loggia, d'un WC indépendant, d'une salle d'eau et de deux chambres. Classée DPE B, cette maison bénéficie d'une très bonne performance énergétique, garantissant des charges de consommation contenues. Le chauffage est électrique. Idéalement située à Andernos, proche des services et commerces et à quelques centaines de mètres du bassin
GUJAN-MESTRAS (33470)
Au prix de
1 040 €
Situé au 12 allée du Petit Mestey, l'appartement est disponible à partir du 15 février Au sein d'une résidence neuve, appartement T3 meublé de 60,14 m², proposant un ameublement strict minimum. Il se compose de : - Un séjour lumineux de 24 m² - Une cuisine ouverte équipée - Deux chambres, dont une avec balcon - Une salle d'eau moderne avec douche à l'italienne - WC séparés - Deux places de parking privatives Appartement neuf, fonctionnel et confortable, idéal pour une installation rapide Disponible à partir du 15 février, contactez nous au 06.65.51.15.98 ou au 05 57 52 99 99 Pour toute demande concernant ce logement, nous vous invitons à déposer votre dossier de candidature en ligne sur GARANT ME. Dès que votre dossier est complet, notre équipe vous contacte pour poursuivre l¿étude de votre demande.
ANDERNOS LES BAINS (33510)
Au prix de
700 €
Pour toute demande concernant ce logement, nous vous invitons à déposer votre dossier de candidature en ligne en suivant le mode opératoire disponible sur la 2ème photo de l'annonce. Dès que votre dossier est complet, notre équipe vous contacte pour poursuivre l'étude de votre demande. RESIDENCE LA LOUISIANE Square Habitat vous propose un appartement de type T2 de 42 m² à Andernos, situé au deuxième étage d'une copropriété sécurisée. Il se compose d'un séjour, une cuisine aménagée et équipée indépendante, une chambre avec dressing, une salle de bains, WC, ainsi qu'un balcon, une place de parking complète ce bien.
LA TESTE DE BUCH (33260)
Au prix de
595 €
Appartement 2 Pieces
SANGUINET (40460)
Au prix de
1 206.85 €
Idéalement située au c?ur de Sanguinet, cette belle maison familiale de 163,47 m² séduit par ses volumes généreux, son cachet et sa situation privilégiée, à deux pas des commerces et commodités. Le rez-de-chaussée s'ouvre sur de spacieuses pièces de vie comprenant un salon chaleureux, une salle à manger conviviale, une cuisine aménagée, une chambre ainsi qu'un WC indépendant. À l'étage, l'espace nuit se compose de quatre chambres dont deux suites parentales, complétées par trois points d'eau, offrant un confort optimal pour une vie de famille ou des réceptions. Le bien est équipé d'un chauffage central AIR/EAU par pompe à chaleur (2017), alliant performance énergétique et confort thermique. À l'arrière de la maison, un jardin agréable et intimiste vous permettra de profiter pleinement des beaux jours. Une grange d'environ 60 m² vient compléter l'ensemble, offrant de multiples possibilités de rangement ou d'aménagement, ainsi qu'un stationnement facile. Disponible à partir du MARS 2026 Pour tout renseignement complémentaire ou pour organiser une visite, contactez-nous au 05.58.78.10.73.
PESSAC (33600)
Au prix de
700 €
PESSAC Le Burck, joli T2 loué en meublé, entièrement rénové, comprenant une entrée, pièce de vie avec coin cuisine, rangements, salle d'eau avec toilettes. Parking libre. Contactez l'agence au 05.56.37.12.12 Retrouvez l'état des risques sur georisques.gouv.fr
BISCARROSSE (40600)
Au prix de
880.74 €
Idéalement situé en front de mer, au c?ur de Biscarrosse Plage, cet appartement T3 de 60 m², situé au 1er étage d'une petite copropriété, offre un cadre de vie privilégié entre océan et commerces. Il se compose d'un salon-séjour lumineux avec cuisine ouverte entièrement aménagée et équipée, d'un cellier, de deux chambres, ainsi que d'une salle d'eau avec WC. Les atouts : - Emplacement exceptionnel - Plage, restaurants et commerces accessibles à pied - Agencement fonctionnel, Disponible à partir du 5 février Pour plus d'informations ou pour organiser une visite, n'hésitez pas à nous contacter au 05.58.78.78.91 ou 06.65.51.15.98. Pour toute demande concernant ce logement, nous vous invitons à déposer votre dossier de candidature en ligne sur GARANT ME .Dès que votre dossier est complet, notre équipe vous contacte pour poursuivre l'étude de votre demande.
EYSINES (33320)
Au prix de
721.98 €
EYSINES - 23 AVENUE JEAN MERMOZ Résidence sécurisée, appartement de type 2 offrant entrée, cuisine équipée ouverte sur un séjour, une chambre, salle d'eau, WC. Terrasse avec jardin et place de parking en exterieur. Les charges comprennent l'entretien des parties communes.
TALENCE (33400)
Au prix de
565.2 €
TALENCE - AVENUE DE MARLY A la location, ce charmant T1 en très bon état, situé au premier étage dans une résidence sécurisée. Pour toute demande concernant ce logement, nous vous invitons à déposer votre dossier de candidature en ligne en suivant le mode opératoire disponible sur la 2ème photo de l'annonce. Dès que votre dossier est complet, notre équipe vous contacte pour poursuivre l'étude de votre demande. Il se compose d'une entrée, séjour lumineux donnant sur un balcon privatif, une cuisine ouverte aménagée et équipée, et une salle d'eau avec toilettes. Une place de parking complète le bien. Disponible à partir du 20/02/2026









.webp)




